Pick up point
担当者からのおすすめポイント
- カラーセレクト
- 間取変更可能
- セミオーダー住宅
- まもりすまい保険
- 地盤保証
- アフターサービス
- 未公開物件
- おすすめ物件
Property outline
横須賀市湘南鷹取4丁目
新築一戸建て / 物件概要
| 所在地 | 横須賀市湘南鷹取4丁目 | ||
|---|---|---|---|
| 交通 | 京急本線「追浜」駅 徒歩22分 | ||
| 価格 | 4,890万円(税込) | ||
| 物件名称 | サンステージ湘南鷹取4丁目 | ||
| 物件種別 | 新築一戸建て | 土地面積 | 19.00㎡〜218.00㎡ |
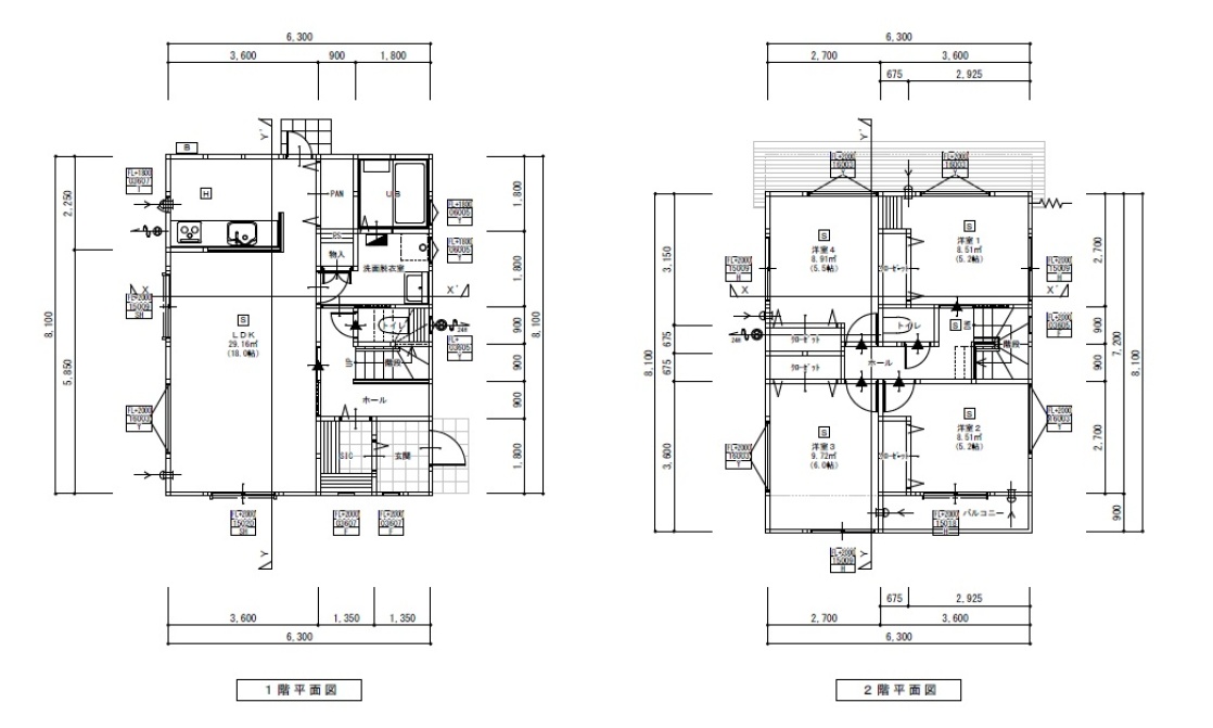
| 建物面積 | 98.82㎡ | 間取 | 4LDK |
| 建物構造 | 木造 2階建 | 完成 | 契約5ヶ月後 |
| 土地権利 | 所有権 | 都市計画 | 市街化区域 |
| 地目 | 宅地 | 用途地域 | 第一種低層住専 |
| 建ぺい率 | 40% | 容積率 | 80% |
| 現況 | 更地 | 引渡し時期 | 相談 |
| 取引態様 | 売主 | 学区 | 鷹取小学校 鷹取中学校 |














